Hořice v Podkrkonoší | ul. Husova
REZERVOVÁNO
POPIS NEMOVITOSTI
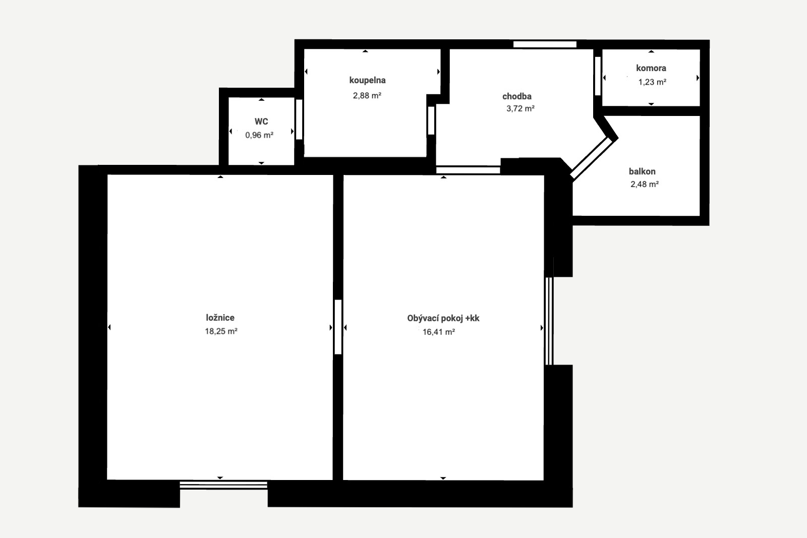
Byt 2+kk o velikosti 60,93 m² včetně balkónu (2,48 m²) a prostorného sklepa (15 m²). Užitná plocha samotného bytu měří 43,45 m². K bytu patří ještě kůlna o velikosti 4,25 m², která je před domem a zahrádka o velikosti cca 10×10 m. Byt se nachází v Hořicích v Podkrkonoší.
Byt i balkón je orientovaný na západ, do klidně části s výhledem na zahrady.
Rekonstrukce bytu proběhla přibližně před 16 lety. Byly vyměněné rozvody vody i elektřiny, dveře a obložky. Proběhla také rekonstrukce koupelny. Okna jsou plastová s trojskly a vnitřními žaluziemi.
Dispozice 2+kk je ideální pro jednotlivce, pár nebo jako investice k pronájmu.
Zálohy celkem: 2.487 Kč (fond oprav: 1.810 Kč, ostatní osobní náklady HS: 184, el. společných prostor: 60 Kč, ostatní náklady: 21 Kč, studená voda: 250 Kč, úklid společných prostor: 162 Kč) + elektřina v závislosti na spotřebě a poskytovateli.
Velkým benefitem je vlastní zahrada o velikosti přibližně 10 × 10 metrů. Získáte tak prostor na posezení, grilování, záhonky nebo malé dětské hřiště.
Parkování je možné na pozemku u domu.
V Hořicích je veškerá občanská vybavenost – obchody, školky, školy, lékař, pošta atd. Výhodou je dobré autobusové a vlakové spojení do dalších větších měst a nájezd na dálnici na Hradec Králové, který je hned u Hořic.
Pokud hledáte bydlení, které kombinuje výhody bytu s kouskem vlastního venkovního prostoru, tato nabídka může být pro vás ideální.
Pro více informací mě neváhejte kontaktovat a rád vás bytem osobně provedu.
PODROBNOSTI
- Kraj: Královehradecký
- Město: Hořice
- Dispozice: 2+kk
- Vlastnictví: Osobní
- Umístění bytu: 2. NP
- Počet podlaží: 3
- Budova: Zděná
- Stav: Dobrý
- Plocha bytu: 43,45 m²
- Plocha včetně sklepa a balkónu: 60,93 m²
- Velikost balkónu: 2,48 m²
- Velikost zahrady: 100 m²
- Kůlna: 4,25 m²
- Topení: Elektrické
- Voda: Veřejný vodovod
- Elektřina: 230 V
- Umístění objektu: Rušná část obce
- Doprava: BUS, Vlak, Dálnice
- PENB:
FOTOGALERIE INTERIÉRU
FOTOGALERIE EXTERIÉRU
PŮDORYS

